En Venta
USD393.800
Departamento
DOME TORRE ARCOS EN VENTA DEPARTAMENTO DE 3 AMBIENTES . FULL AMENITIES
Código: 213181

Arcos 1883, C1428AFA Cdad. Autónoma de Buenos Aires, Argentina, Belgrano, Capital Federal, Argentina.

Compartir esta Propiedad

Descripción de la Propiedad

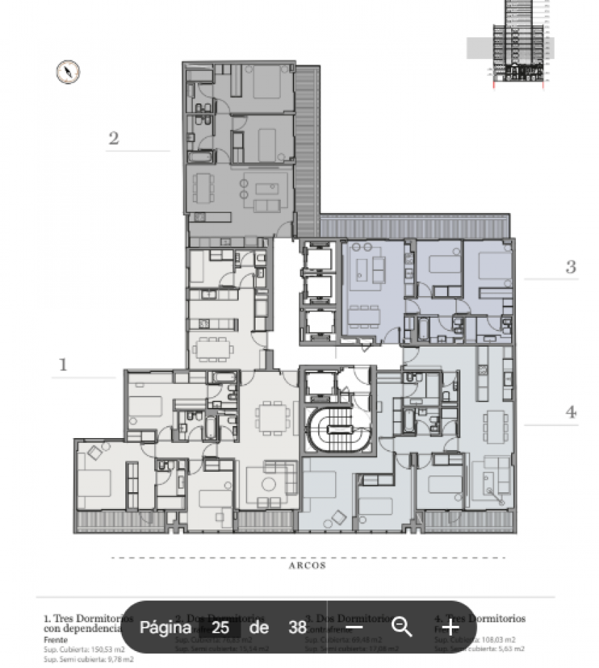
Exclusivo departamento de 3 ambientes con balcón al contrafrente, piso 4.

Living-comedor con cocina integrada y salida a balcón corrido al contrafrente, dormitorio principal en suite con vestidor y salida a balcón al contrafrente, segundo dormitorio con placard, baño completo.

DOME TORRE ARCOS

Elegancia y confort en el corazón de Belgrano.
• Complejo residencial de lujo de 24 pisos que lleva el concepto de vida premium al siguiente nivel en el prestigioso barrio de Belgrano.
• Departamentos de 3 y 4 ambientes con y sin dependencia.
• Cada unidad fue diseñada para combinar la sofisticación y funcionalidad, con terminaciones de alta gama y espacios luminosos que brindan un ambiente de serenidad y modernidad, al que se suman las impresionantes vistas panorámicas de la ciudad.
• DOME es vida premium.

Descripción del edificio
• 24 Niveles
• 4 Subsuelos

AMENITIES
• Gym + área fitness en pb
• Sum con expansión
• Solarium con piscina in/out
• Healthy spa
• Sauna seco y húmedo + sala de relax
• Fly desk en lobby
• Laundry
• Smart lockers
• Seguridad 24hs
• Bike parking
• Espacio ludico exterior

INICIO DE OBRA: Primer trimestre 2026.
FECHA DE ENTREGA: Primer trimestre 2029.

Forma de pago:
Reserva: 10%
Boleto ----- 30% en USD
Saldo ------- 60% en USD en 44 cuotas.

CONSULTAR OTRAS UNIDADES DISPONIBLES Y COCHERAS .

Proyecto: Estudio Aisenson.
Desarrolla: ADN Developers.
Comercializa: Elisabeth Ostman Real Estate

ADVERTENCIA IMPORTANTE: Los montos especificados de expensas responden a una declaración del propietario el día que fue visitada la propiedad por nuestro personal, habitualmente el mismo NO esta actualizado. Verificar el monto actualizado previo al alquiler/compra de la propiedad.
Las medidas, superficies consignados en la presente son aproximados y que no resultan vinculantes, los datos definitivos son los que surgen del título de propiedad.
Fotos de carácter no contractual .

MATRICULA CUCICBA 7724

Las medidas, superficies y proporciones mencionadas en los planos del presente incluyen los metros totales con relación a linderos, espesores de muros de fachada frente, contrafrente y laterales, muros internos de cada unidad y estructuras. Parte de esos metros serán descontados en los planos aprobados por la autoridad competente, siendo los valores finales los que surjan de estos últimos. Los m2 de los amenities no figurarán como propios de la unidad en la escritura traslativa de dominio por tratarse de metros comunes.
Este emprendimiento no es desarrollado, administrado, ni construido por la firma Elisabeth Ostman Real Estate, por lo que la firma Elisabeth Ostman Real Estate no asume responsabilidad alguna, directa o indirecta, por la construcción, desarrollo, finalización, etc. de este desarrollo inmobiliario.


Mas detalles
  • Acepta mascotas
  • Pileta
  • Gimnasio
  • Balcon
  • Seguridad 24hs.
  • Luminoso
  • Solarium
  • Agua Corriente
  • Cloacas
  • Electricidad
  • Gimnasio
  • Ascensor
Ubicación